Contract type Sale
Property Type Industrial/Warehouse, Commercial
Price CONTACT AGENT
Enquire Now Download Brochure
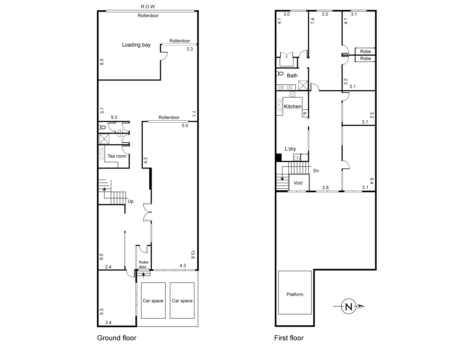
55 DOWN STREET, COLLINGWOOD VIC

Boasting a secure and substantial building over two magnificent levels, this extensively refurbished Collingwood warehouse/office/showroom complex provides a blank canvas of exceptional quality for the next chapter of growth for your business. With the benefit of two (2) street frontages, on-site parking at the front and rear of the building (including roller-door access at the rear) this freestanding, inner-city gem of a building on a significant and strategically located landholding will not last long!

Features include:
> Two (2) street frontages
> 10m-frontage at both front and rear
> Painted concrete floor (ground floor)
> Warehousing & showroom (ground floor)
> Separate first floor offices and modern kitchen + bathroom
> Air-conditioning & heating (reverse-cycle)
> Ample amenities on both levels
> Short-term lease in place
> BUILDING AREA: 450m2*
> LAND: 307m2*

An increasingly rare offering for the astute owner-occupier or investor in one of Melbourne's most highly prized and tightly held inner-urban precincts.

This property is for PRIVATE SALE

For further information on this exciting opportunity, please contact the exclusive selling agents MIGLIC DEAN.

GERTRUDE STREET

Gertrude Street, Fitzroy: A Retail Precinct Built on Authen­tic­i­ty, Longevi­ty and Cul­tur­al Relevance

In a retail landscape that is constantly evolving — shaped by changing consumer behaviours, economic cycles and shifting urban dynamics — there are very few streets that consistently outperform expectations while remaining fiercely authentic. Gertrude Street in Fitzroy is one of them.

From a retail leasing perspective, Gertrude Street stands apart not because it chases trends, but because it sets them. The strength of the precinct lies in its deeply curated tenancy mix, its strong sense of place and the longevity of businesses that have become inseparable from Melbourne’s cultural fabric.

Read more →

SORRENTO RETAIL

THE ENDUR­ING STRENGTH OF SEA­SIDE RETAIL STRIPS IN VIC­TO­RIA: A DIRECTOR’S PERSPECTIVE

Victorian seaside towns have always held a strong emotional pull for both locals and visitors. As someone who works closely with businesses navigating growth, brand presence, and commercial strategy and having spent time in Sorrento for a number of summers now, I’ve had time to analyse how retail thrives in this coastal location (currently full retail occupation by the way!) Suburbs like Sorrento demonstrate a particularly resilient form of retail ecology—one that thrives on a balanced mix of uses, seasonal versatility, and strong anchor tenants.

Read more →

DEVELOP G1 1

The Lease Is End­ing — Now What? A Prac­ti­cal Guide to Make-Good Oblig­a­tions in Victoria

When a commercial lease ends, one of the most common—and costly—sources of tension between landlords and tenants is the “make-good” clause. At Miglic Dean, we’ve helped countless clients navigate this process, and we know that what’s written in the lease is only half the story. The other half is about timing, communication, and strategic foresight.

Read more →